302 Neepsend Lane

Sheffield, South Yorkshire, S3 8AW

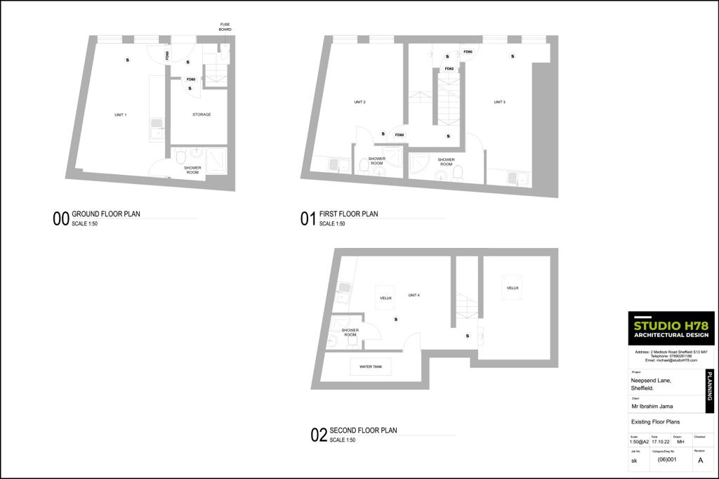
Guide Price: £90,000 Description A compressively refurbished freehold office building offerings four attractive suites amounting to 83 sqm (893 sqft) over three levels. The property occupies a level position, just off the A61, less than a mile from Sheffield's inner ring road and offers a high standard of accommodation that could be used for own occupation or letting. Each suite has its own kitchen area together with separate shower room/WC facilities and are all ready for immediate occupation. Location Neepsend lane runs between the main A61 Penistone Road and Rutland Road less than a mile to the north west of Sheffield's Inner Ring Road. The Primrose View tram stop is with walking distance and the offices are well positioned for access to Kelham Island, Sheffield's commercial sector and local facilities Planning Planning consent was granted by Sheffield City Council on the 26th April 2024 for use as offices (Class E(g)(i) . Ref 23/03077/SHU (Formerly PP-12469196) General 1. All the information provided on our website is for indicative purposes only and interested parties should refer to the contents of the legal pack and rely upon their own due diligence as a prudent bidder. 2. PLEASE NOTE BIDDING COMMENCES ON TUESDAY 15TH OCTOBER AND CLOSES ON WEDNESDAY 16TH OCTOBER. Costs Details of the Buyer's Premium and any additional fees payable are contained within the legal documents. Tenure Comments The tile includes the Freehold to the first/second floor accommodation that lies above the driveway to the adjoining property. Refer to legal pack

Details

Type Office Tenure Freehold £90,000 Location Hillsborough Size 83.00

Highlights

  • TO BE SOLD BY PUBLIC ONLINE AUCTION ON 16TH OCTOBER 2024.
  • PLEASE BE AWARE THAT THESE DETAILS ARE OFTEN UPDATED AND SUBJECT TO CHANGE ANY TIME BEFORE THE AUCTION.
  • YOU MUST NOT RELY ON THE INFORMATION BELOW AND SHOULD VIEW FULL PARTICULARS AND ANY ADDENDUMS ON THE AUCTIONEER'S WEBSITE.
X
Discover...
Sheffield Inspires Logo
x